Топ-100
Этот веб-сайт использует куки, чтобы улучшить ваш пользовательский опыт.
OK
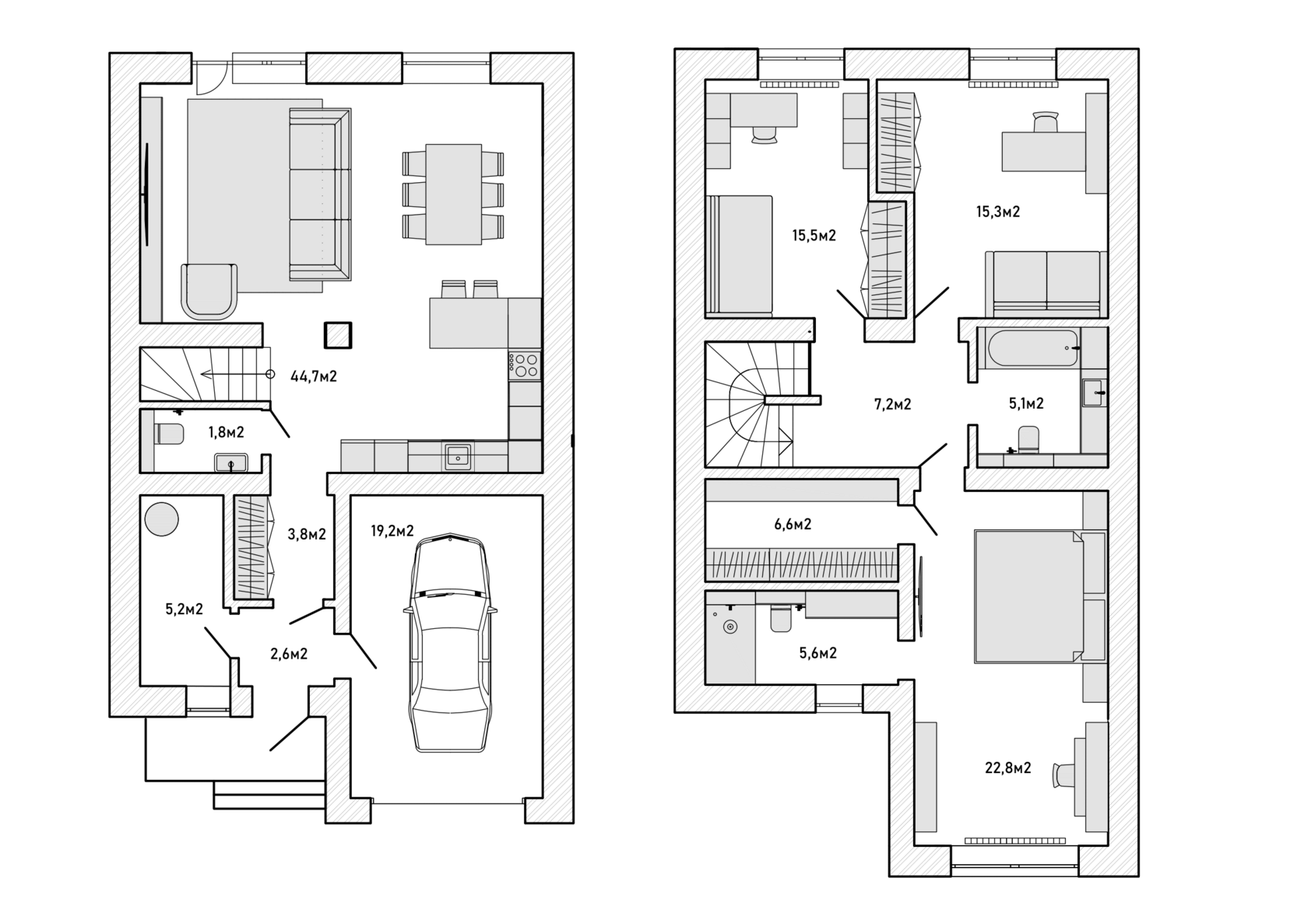
Двухэтажные коттеджи площадью от 175м² до 181.4м² с отдельным входом для каждой семьи, с теплым гаражом, парковочным местом перед домом и участком сзади дома. На первом этаже — просторная кухня-гостинная с французскими окнами, гостевой санузел и теплогенераторная.

На втором — три уютные спальни. В одной из них предусмотрена гардеробная и ванная комната. Также на этаже расположен санузел.
  • Теплый пол на первом этаже
    Теплый пол дарит приятное тепло под ногами, равномерно прогревает комнату и устраняет ощущение сырости.
  • Городские коммуникации
    Природный газ — тепло и горячая вода круглый год без переплат. Чистая городская вода из крана. Быстрый интернет и стабильная связь.
  • Приточно-вытяжная вентиляция
    Постоянный приток кислорода — нет духоты, легче дышать. Благодаря фильтрации меньше пыли и аллергенов.
  • Можно установить камин
    Камин может создать уютную атмосферу — живой огонь успокаивает и снимает стресс. Дарит приятное тепло в холодные вечера, становясь центром дома для семейных поседелок.
  • Балкон на втором этаже
    Дополнительное пространство для отдыха с чашечкой кофе или книгой. Можно использовать как место для хранения.
  • Дома из кирпича
    Идеальное сочетание прочности, комфорта и долговечности. Сохраняет тепо зимой и прохладу летом, а высокая плотность обеспечивает защиту от шума.

планировка

Выберите отделку

Если хотите переехать быстро, мы предлагаем дома с уже готовым дизайнерским ремонтом или базовой отделкой без мебели и сантехники. Ремонт можно включить в ипотеку.

Пройдите опрос и мы подберём для вас варианты домов с расчётом стоимости

Екатерина Отдел продаж
Выберите площадь дома
Екатерина Отдел продаж
Премиальные двухэтажные дома площадью от 108 до 180 кв.м. У каждого дома участок и парковочное место. Гараж в домах площадью 146 и 175 кв.м.
Что должно быть в вашем доме?
Екатерина Отдел продаж
В зависимости от ваших пожеланий мы подберем нужную планировку.
*Select one or more options
Выберите тип ремонта
Екатерина Отдел продаж
Мы не продаем дома в черновой отделке. Вы можете выбрать базовый или дизайнерский ремонт, если заехать необходимо сразу.
Через какое время вы планируете переезд?
Оставьте свои контакты и через 5 минут мы отправим подборку домов с ценами

Поможем с ипотекой

ЗАПИШИТЕСЬ НА БЕСПЛАТНУЮ ЭКСКУРСИЮ ПО ПОСЕЛКУ
Ничто не заменит живого общения с территорией. Вы сможете увидеть дома, улицы и ландшафтные решения в реальности, а не на фотографиях.

или оцените еще 2 варианта